Description
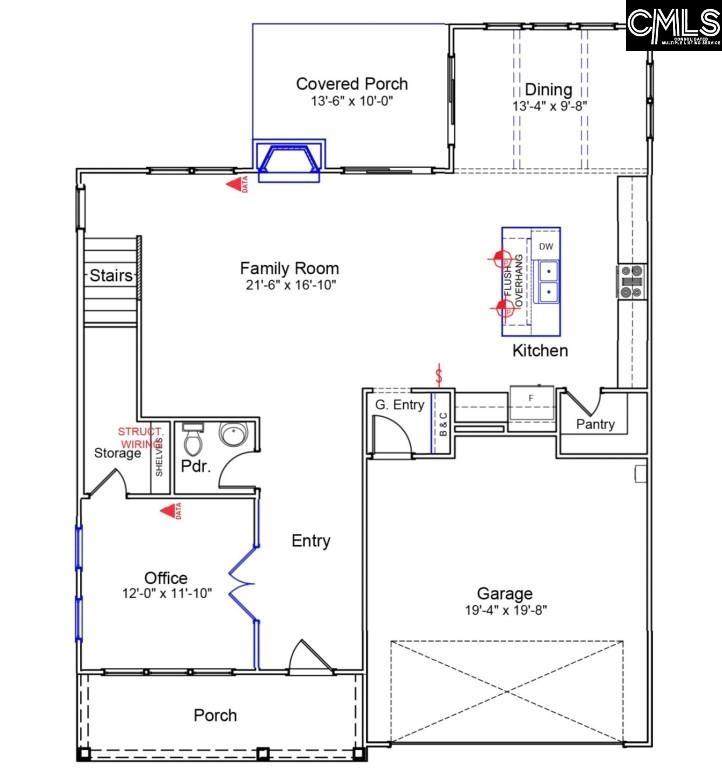
The Roanoke plan offers four bedrooms and two-and-a-half baths in a thoughtfully designed layout. Upon entering the first floor, you’ll find a flex space off of the entry perfect for a dining room or formal living area. The rest of the main level features an open-concept design, with the kitchen overlooking the spacious great room, which includes a gas fireplace. The gourmet-style kitchen boasts a large center island, a walk-in pantry, an in-wall oven and microwave, a gas cooktop, and a hood vent. Upgraded cabinets and quartz countertops complete the space. Upstairs, the primary suite is a private retreat with two walk-in closets, a boxed ceiling, and an en-suite luxury bath. Three additional secondary bedrooms, a laundry room, a hall bathroom, and a loft complete the second floor. Enjoy outdoor living on your covered back porch—perfect for relaxing or entertaining! Up to $15,000 in closing costs when using Silverton mortgage and partner closing attorney for a limited time. Disclaimer: CMLS has not reviewed and, therefore, does not endorse vendors who may appear in listings.
-
4BEDS
-
0.18ACRES
-
2BATHS
-
11/2 BATHS
-
2,723SQFT
-
$151$/SQFT
School Information
Description
The Roanoke plan offers four bedrooms and two-and-a-half baths in a thoughtfully designed layout. Upon entering the first floor, you’ll find a flex space off of the entry perfect for a dining room or formal living area. The rest of the main level features an open-concept design, with the kitchen overlooking the spacious great room, which includes a gas fireplace. The gourmet-style kitchen boasts a large center island, a walk-in pantry, an in-wall oven and microwave, a gas cooktop, and a hood vent. Upgraded cabinets and quartz countertops complete the space. Upstairs, the primary suite is a private retreat with two walk-in closets, a boxed ceiling, and an en-suite luxury bath. Three additional secondary bedrooms, a laundry room, a hall bathroom, and a loft complete the second floor. Enjoy outdoor living on your covered back porch—perfect for relaxing or entertaining! Up to $15,000 in closing costs when using Silverton mortgage and partner closing attorney for a limited time. Disclaimer: CMLS has not reviewed and, therefore, does not endorse vendors who may appear in listings.
Related Properties
© 2026 Consolidated Multiple Listing Service, Inc. All rights reserved. IDX information is provided exclusively for consumers' personal, non-commercial use and may not be used for any purpose other than to identify prospective properties consumers may be interested in purchasing. Information is deemed reliable but is not guaranteed accurate by the MLS or Living in Columbia South Carolina Team | EXP Realty LLC. Data last updated: 2026-01-14T23:40:14.953.
